Ecole Saint-Joseph Bruges

Dans l'école Saint-Joseph de Bruges, ils ont opté pour une unité de ventilation centralisée et plusieurs unités de ventilation décentralisées.
Ce choix a été fait en raison d'une grande rénovation des locaux sanitaires et de plusieurs salles de classe. En raison du manque d'espace pour les grands diamètres et les gaines principales, le choix s'est porté sur l'installation d'une unité de ventilation centale pur les locaux sanitaires, et d'une unité de ventilation par salle de classe.
Ventilatie in klaslokalen
In dit type klaslokaal koos men om het Sanutal AIR ventilatietoestel weg te werken in een berging die niet meer gebruikt werd.
De extractie wordt uitgevoerd met één centrale wandrooster van 520x280 mm.
De pulsie wordt uitgevoerd met behulp van een textielkanaal. De voordelen van het textielkanaal zijn dat de hoogte beperkt is door het gebruik van het halve-maan principe. Daarnaast zorgt het textielkanaal ook voor een rustige en tochtvrije verdeling van lucht.
De installatie is afgewerkt met een vaste geluidsdemper in het klaslokaal om de industriële look compleet te maken en een flexibele demper in de berging.
2 brandkleppen alvorens de kanalen de klasruimte binnengaan en een combirooster aan de gevel buiten.
Compacte muurdoorvoer
Voor 2 van de 5 klaslokalen heeft men gekozen voor de gecombineerde gevelrooster.
De voordelen van de combirooster zijn:
- Geen extra kokers voorzien voor toe -en afvoer van lucht
- Minder geïsoleerde kanalen
- Geen dakwerk
- Esthetisch proper
Ventilatie in sanitaire ruimtes
Voor de sanitaire ruimtes, lerarenlokaal, drukkerij en één klaslokaal werd een Sanutal HRH15 ventilatietoestel geplaatst in de stookruimte.
Er werd gekozen voor een vloermodel en de afwerking gebeurde met rechthoekige kanalen en- geluiddempers.
Om de industriële look compleet te maken koos men overal voor kanaalroosters van 425x75 mm. Op deze manier vermeden ze tal van ventielen per ruimte.
De afvoer van vervuilde lucht verloopt via een dakdoorvoer en de aanzuig van verse lucht verloopt via een gevelrooster van 500x500 mm.
Centraal ventilatietoestel
Sanutal HRH15
- Beschikbaar als plafond en vloermodel (binnen of buiten)
- max. debiet van 1.300m³/h
- Rendement van 78%
- Beschikbaar met of zonder DX batterij
- Aansluitbaar of gebouwbeheersysteem
- Rechthoekige ventilatiekanalen
- Rechthoekige geluiddempers
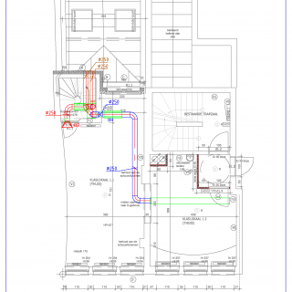
Legplan
Bij dergelijke projecten wordt telkens een werfbezoek ingepland met één van onze ventilatie experten en de installateur en/of eindklant. Na het bezoek kunnen wij verder aan de slag en voorzien wij de legplannen in 2D en 3D inclusief een gedetailleerde materiaallijst. De legplannen zijn voorzien van dimensionering en aanduiding van debiet per ruimte. Op deze manier heeft de installateur een houvast tijdens het plaatsen.
Ben je van plan om renovaties uit te voeren in jouw school of had u graag meer informatie gekregen omtrent ventilatie voor scholen en klaslokalen?
Let's have a coffee en we vertellen u meer over het reilen en zeilen van "ventilation for schools".































